ID CP2687692

Vanzare apartament 3 camere | mobilat si utilat | 2 locuri parcare

ID CP2687692

290,000 € + 21% TVA

Apartament cu 3 camere de vânzare
Pipera, Bucuresti
78 mp
2023

Vă prezentăm un apartament cu 3 camere, complet mobilat și utilat, situat în complexul Avalon Estate din zona Pipera. Proprietatea se remarcă prin compartimentarea eficientă, finisajele moderne și ambientul liniștit, fiind ideală atât pentru locuit, cât și pentru investiție.

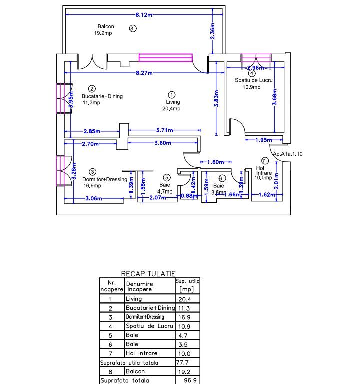
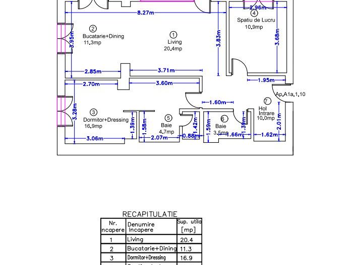
Apartamentul are o suprafață utilă totală de 77,7 mp și un balcon generos de 19,2 mp. Compartimentarea include un living spațios, bucătărie cu zonă de dining, două dormitoare (dormitor principal cu dressing și un al doilea dormitor ideal pentru copil, birou sau oaspeți), două băi complet echipate și un hol de acces amplu.

Se vinde complet mobilat și utilat, cu mobilier contemporan și electrocasnice incluse, gata pentru mutare imediată.

Complexul Avalon Estate oferă un stil de viață echilibrat și exclusivist, cu facilități atent gândite pentru confort și relaxare:

* piscină cu filtrare naturală prin plante

* două saune uscate

* studio de yoga

* clubhouse

* acces direct la promenada lacului Pipera

* parc privat de 28.000 mp

* alei pietonale, fără trafic auto

Situat în apropierea școlilor internaționale, zonelor de birouri, centrelor comerciale și restaurantelor, Avalon Estate este un spațiu ideal pentru cei care caută un refugiu urban elegant și complet.

Pretul include mobilierul si 2 locuri de parcare subterane.

Citește mai mult

  • Tip apartament
    Apartament
  • Număr camere
    3
  • Etaj
    3
  • Suprafață utilă
    78 mp
  • Disponibilitate
    Imediat
  • Imobil
    Bloc de apart.
  • An construcție
    2023
  • Construcție nouă
    Da

Facilități

Apă
Canalizare
CATV
Curent
Gaz
Iluminat stradal
Internet
Mijloace de transport în comun
Străzi asfaltate
Telefon
Nicoli Iulia - Nicoli Immobiliare Group
Nicoli Iulia
Manager

+40 729 463 853


Solicită chiar acum o vizionare
Nume
Telefon
Email
Sună acum Solicită vizionare
Necesare:

Site-ul nu poate funcționa corect fără aceste cookie-uri. Vezi cookie-urile

Statistică:

Strângem statistici anonime despre voi, vizitatorii unici, pentru a vă îmbunătăți experiența dumneavoastră. Vezi cookie-urile

Marketing:

Pentru a ne promova mai eficient serviciile noastre, folosim cookies pentru a vă identifica și a vă oferi proprietăți și servicii personalizate. Vezi cookie-urile

Acest site folosește cookies, află detalii. Alege ce tipuri de cookies dorești să permitem: